Villa Thorain
500 m² repensés pour habiter autrement
Située à Antony, Villa Thorain est un projet de réhabilitation d’un ancien ensemble de bureaux de 500 m², désormais transformé en plusieurs appartements contemporains. Ce lieu repensé conjugue confort, modernité et cachet architectural, pour offrir à ses habitants un cadre de vie harmonieux et lumineux.
Foch
Appartement renové à Juan les pins
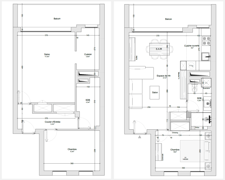
Situé au cœur de Juan-les-Pins, cet appartement de 40 m² a fait l’objet d’une rénovation complète, pensée pour révéler tout son potentiel. Chaque espace a été optimisé afin d’apporter fluidité, fonctionnalité et confort au quotidien. Matériaux contemporains, lignes épurées et agencement sur mesure redonnent à ce lieu un caractère moderne et lumineux, parfaitement adapté à une vie balnéaire élégante et pratique.
Division Leclerc
520 m2 réaménagés
À Antony, le projet Division Leclerc transforme un ancien immeuble de bureaux de 520 m² en plusieurs appartements contemporains. Les espaces ont été entièrement repensés pour offrir confort, luminosité et fonctionnalité, tout en préservant le charme architectural du bâtiment d’origine.
Edouard Vaillant
2 appartements modernisés
Dans une charmante résidence de Boulogne, deux appartements de 45 et 68 m² ont été entièrement rénovés et restylisés pour offrir un cadre de vie moderne et fonctionnel. Chaque détail a été repensé : optimisation des espaces, matériaux contemporains et agencement soigné créent des intérieurs lumineux et harmonieux. Ces appartements allient confort, style et praticité, parfaits pour une vie citadine élégante et agréable.










